Projects
    Space/ Architecture/ Art
    Publications/ News
    Academia
  
           

Mark


“Urban Oasis: Reborn into life”
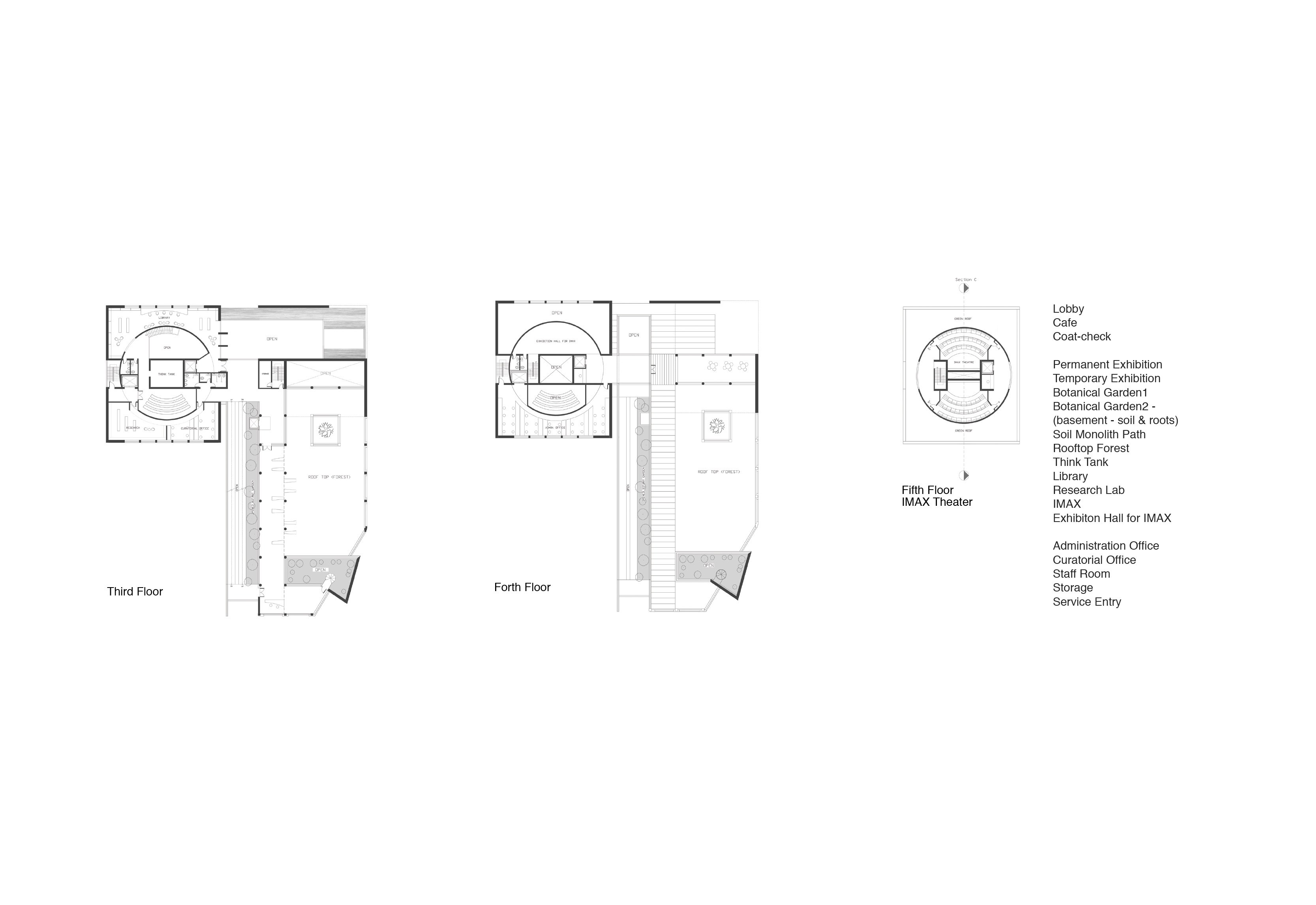
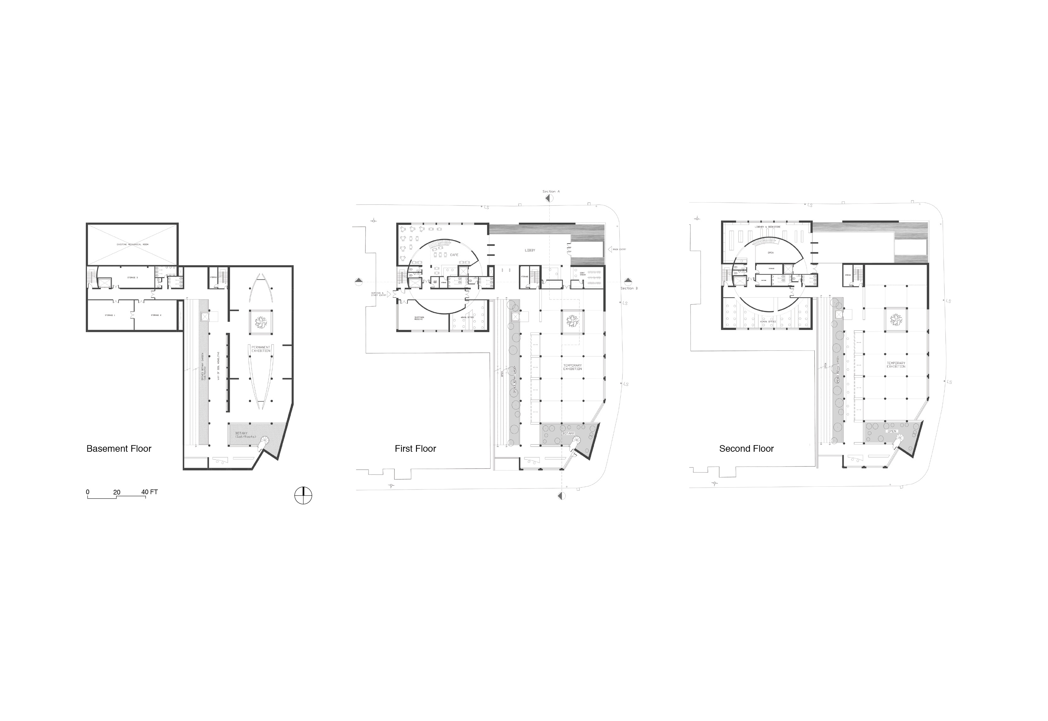
Program : Museum of Nature & Environment
 Location : Toronto, Canada
Area : 2300m2











Copyright©2019 FREESPACE. All Rights Reserved.

Mark